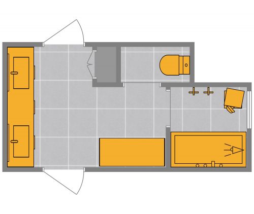
Jack and Jill Bathroom With Hall Access

This Jack and Jill bathroom features access from a hall and a bedroom; an excellent layout for homes with a limited number of bathrooms as both guests and residents have direct access. Inside, a double vanity sink features modern pull-out drawer storage underneath. The long mirror above the vanity is functional and elongates the room. The layout features a semi-private toilet area and a soaking tub and shower combination. Plus, all your storage needs are met with the built-in linen closet and extra storage cabinet near the vanity. The decor features a spa-like pink and white color scheme with a statement Mediterranean tile wall behind the tub. Gold details provide a luxurious touch on the sink faucets, shower hardware, door handles, and mirror surround. The engineered wood floor and wood cabinet blend in and provide a lovely natural touch to the room.

98 sq ft
9 m2
1 Level

This plan can be customized

Edit This Project

Want to edit this floor plan or create your own?

Download App

Similar Floor Plans


More From This Supplier