Teen Boy Bedroom Idea

If you're looking for bedroom ideas that your teenager and you can agree on, this teen boy bedroom idea will do the trick. Modern, unique, and tasteful, this space has a little bit of everything. While on the smaller size, personality certainly isn't lacking as the room features dramatic black hardwood flooring, two understated armoires in place of a traditional closet, and three eye-catching windows that round out one of the room's corners. A few simple windows positioned across from the windows maximize the room's natural light, making it feel spacious and airy. Black and white furniture, including a handsome headboard with built-in light fixtures and shelves, add to the room's contemporary atmosphere. A bright red bedspread and funky printed area rug break up the harsh neutrals while incorporating a touch of playfulness. Best of all, this room can easily transition with your teen as his tastes and interests evolve.

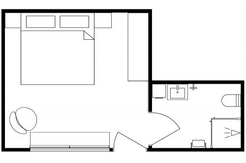
175 sq ft
16 m2
1 Level

This plan can be customized

Edit This Project

Want to edit this floor plan or create your own?

Download App

Similar Floor Plans


More From This Supplier