Floor Plan for Tiny House

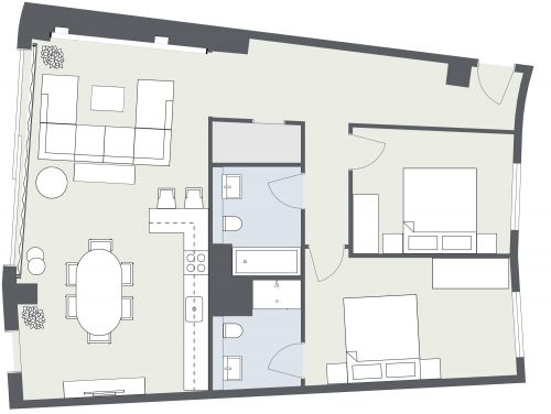
This 1 bedroom 1 bathroom floor plan for a tiny house is perfect for one person or a couple. The open concept layout features a combined kitchen, living room, and separate dining area. The kitchen’s peninsula countertop includes a convenient breakfast bar plus extra counter and prep space. With a full-size refrigerator, range, and upper and lower cabinets, this layout is a great option for someone who likes to cook. The separate dining table adjacent to a large window provides a comfortable place to eat or can be used as a work area. The ¾ bathroom is accessible from the main living area and includes a sink, toilet, and spacious shower. Relax on your full-size couch in the living room and enjoy your favorite movies and shows on the wall-mounted entertainment center.

264 sq ft
24 m2
1 Level
1 Bedroom
1 Bath

This plan can be customized

Edit This Project

Want to edit this floor plan or create your own?

Download App

Similar Floor Plans


More From This Supplier