Two Car Garage With Apartment Plan

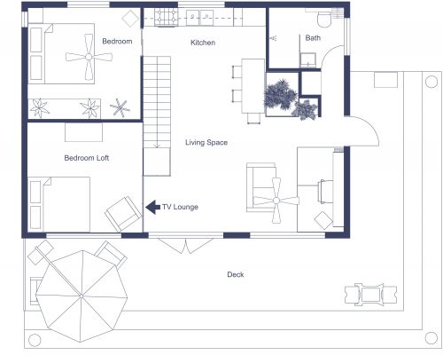
If you’ve been looking for a two car garage with an apartment plan, check out this layout. The extended garage features 2 car entrances; you can easily park two cars, an RV, motorcycles, or e-bikes, use part of the garage for a workshop or gym, lots of options. Entering from the front of the unit, you’ll find an open-plan living room and kitchen. The kitchen includes a full-size refrigerator, sink, range, upper cabinets, and a tall pantry cupboard. An island provides extra storage and counter space and breakfast bar dining. Adjacent to the kitchen, you’ll find a separate washer/dryer closet and a bathroom with sink, toilet, open space for your choice of shower or tub, and an optional linen closet. The primary bedroom includes an attached full bathroom and a large walk-in closet. The second bedroom is spacious and also has a walk-in closet.

1066 sq ft
99 m2
1 Level
2 Bedrooms
2 Baths

This plan can be customized

Edit This Project

Want to edit this floor plan or create your own?

Download App

Similar Floor Plans


More From This Supplier