5 Bedroom Barndominium Floor Plan

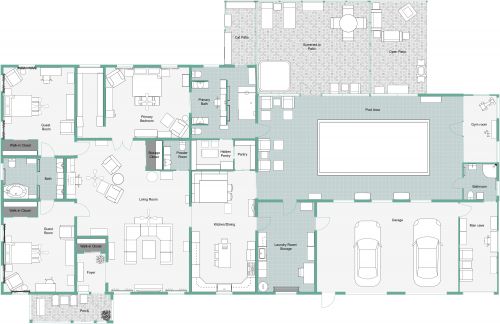
Enjoy the spacious rooms in this 5 bedroom barndominium floor plan. A large front porch and double door entry lead to the open living room and statement fireplace. Chefs will appreciate the large L-shaped kitchen with its island workspace and upper cabinet storage. Easily host family and guests at the adjacent oversized dining table, then hang out in the nearby game room with its cozy fireplace and easy access to the terrace.

This barndo’s split-bedroom layout places a spacious primary bedroom on one side of the floor plan. This room features a huge walk-in closet and a sizeable ensuite bathroom featuring 2 private toilet rooms, 2 sinks, 2 showers, and a large soaking tub. On the other side of the floor plan, each pair of secondary bedrooms shares access to a well-designed jack and jill bathroom. A laundry area, mudroom, and enormous shop space with an attached ¾ bathroom complete this layout. Furnish it as you like - set up a gym, add a garage door, create a large playroom - the options are endless.

2734 sq ft
254 m2
1 Level
5 Bedrooms
3 Baths
1 Half Bath

This plan can be customized

Edit This Project

Want to edit this floor plan or create your own?

Download App

Similar Floor Plans


More From This Supplier