Barndominium House Plan Model 4256

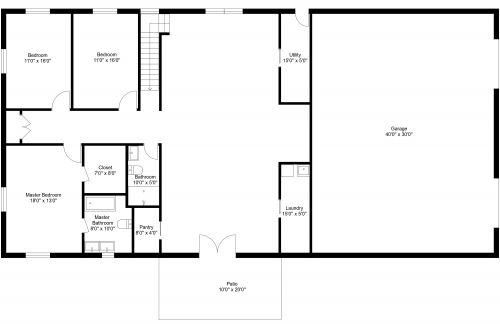
Bardominium House Plan Model 4256 features a 2 up / 2 down bedroom layout. This floor plan works well for those wanting the primary bedroom and a guest room or office downstairs, with the kids in the upstairs bedrooms. The impressive double door entrance leads into a beautiful open-plan living and dining area. An island kitchen offers plenty of room for cooking and entertaining, plus chefs will appreciate the generous walk-in pantry. The 2 car garage has a direct entrance door into the unit, with a coat closet, powder bathroom, and separate laundry room nearby. The downstairs primary bedroom features an ensuite bathroom complete with a double sink, shower, toilet, and walk-in closet. Furnish the secondary bedroom on this level to meet your needs, such as a guest suite or office. Upstairs, two additional secondary bedrooms feature built-in closets and share a full bathroom and open flexible space perfect as a den, study area, teen hangout, or playroom.

Made by
Barndos
2457 sq ft
228 m2
2 Levels
4 Bedrooms
2 Baths
1 Half Bath

This plan can be customized

Edit This Project

Want to edit this floor plan or create your own?

Download App

Similar Floor Plans


More From This Supplier