Basement Layout Design

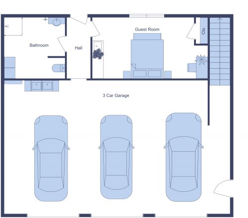
If you're looking for a basement layout design that is built with comfortable entertaining in mind, this is the one for you. Walk down the stairs to find a huge living space that is large enough to accommodate a pool table on one side and a seating arrangement on the other with room to spare. This room is adorned with pale blue tile flooring and white walls, which make it feel even bigger and brighter. A home theater lies on the other side of the basement, complete with hardwood flooring and comfortable seating. A personal gym area takes this basement to the next level. A full-size bathroom and two small storage rooms are also included. You'll look forward to spending time in this bright, modern basement.

1428 sq ft
133 m2
1 Level
1 Bath

This plan can be customized

Edit This Project

Want to edit this floor plan or create your own?

Download App

Similar Floor Plans


More From This Supplier