Smultronstället 106

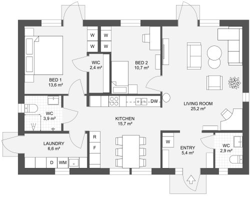
The Smultronstallet 106 is a feature-packed 3 bedroom 1.5 bathroom floor plan. The entry foyer includes shelves, a convenient coat closet, and a handy ½ bathroom. On your right, a separate laundry room has a washer/dryer, utility sink, and extra storage. You’ll love the access door to the outside, making it easy to hang laundry out to dry. To the left, a large kitchen and dining area includes a double refrigerator, wall-mounted oven, sink, range, and upper storage. You can customize it to your preferences. The spacious living room allows for a furniture grouping and a reading area, piano, or perhaps a desk unit. Enjoy convenient access to the outdoors from the living room. On the right side of the floor plan, configure the bedroom for guests, children, or as an office or craft room. On the other side of the layout, you’ll find a sizeable primary bedroom with access to the backyard. A ¾ bathroom with a sink, toilet, and shower is nearby, as is the third bedroom.

Made by
Bra Hus
1203 sq ft
112 m2
1 Level
3 Bedrooms
1 Bath
1 Half Bath

This plan can be customized

Edit This Project

Want to edit this floor plan or create your own?

Download App

Similar Floor Plans


More From This Supplier