4 Bedroom 2 Story House Plan

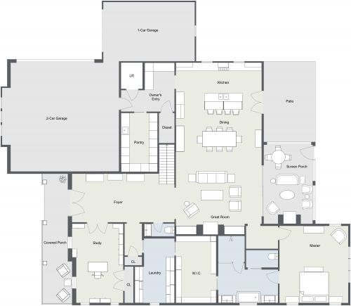
The ground floor of this 4 bedroom 2 story house plan includes a desirable private bedroom and bath, perfect for guests. From the covered front porch, a welcoming foyer features an enclosed study/office and a convenient powder bathroom. Down the hall, the open great room is the epicenter of daily living, where you can enjoy time with family and friends. The kitchen features an island/breakfast bar, butler’s pantry, walk-in pantry, and upper cabinet storage. Guests and family can relax together or spread out across the living room, family room, and outdoor screened porch with its convenient outdoor kitchen. Upstairs, the spacious primary suite features a huge walk-in closet and a spa-like ensuite bathroom with a private toilet room, shower, soaking tub, and 2 sinks. The 2 secondary bedrooms on this level each have their own sink and toilet and share a bathtub. Other notable upstairs highlights include a teen room, additional powder bathroom, study, and laundry room.

4691 sq ft
436 m2
2 Levels
4 Bedrooms
3 Baths
2 Half Baths

This plan can be customized

Edit This Project

Want to edit this floor plan or create your own?

Download App

Similar Floor Plans


More From This Supplier