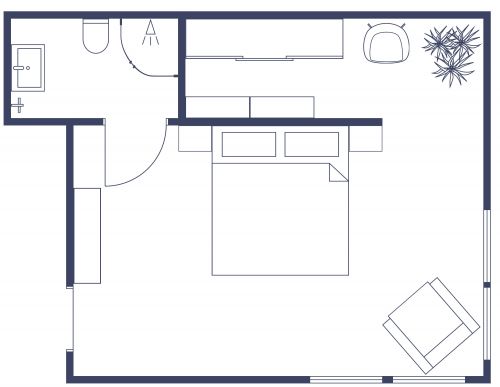
Primary Bedroom With Greek Décor Elements

This unique primary bedroom layout incorporates Greek décor elements for an innovative and refreshing environment to rest your head in at the end of each day. Muted gray floorboards combine with white and turquoise accents to make for a happy yet tranquil feel, while a garden-style soaking tub in the corner of the bedroom offers an elevated, spa-inspired experience. Next to the tub, find space for a dresser, and along the opposite wall there is plenty of room for a comfortable king or queen size bed with matching side tables. The left-hand corner of the room offers space for an L-shaped bookshelf or armoire, and your en suite bathroom provides ultimate privacy and convenience. Discover all the possibilities with this unique take on the primary bedroom layout.

259 sq ft
24 m2
1 Level

This plan can be customized

Edit This Project

Want to edit this floor plan or create your own?

Download App

Similar Floor Plans


More From This Supplier