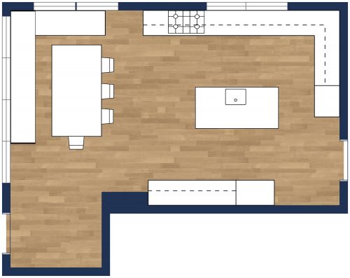
U-Shaped Kitchen With Peninsula

Discover a spacious room for dining, entertaining, and preparing meals inside this U-shaped kitchen with peninsula. Natural wood toned flooring and butcher block style countertops give the room a warm, homey ambiance while a separate dining area is perfect for family mealtime. A white, double-door refrigerator sits at one corner of the kitchen, followed by plenty of countertop space for meal preparation. Around the corner, find a double-sink flanked by even more countertop space, and parallel to the refrigerator you'll find a hooded range and oven. Behind the U-shaped counter space, a dining area awaits. Adorn this space with a sizable dining table to be able to seat up to six guests, and enjoy the warm glow of natural sunlight streaming in through the window along the far wall.

269 sq ft
25 m2
1 Level

This plan can be customized

Edit This Project

Want to edit this floor plan or create your own?

Download App

Similar Floor Plans


More From This Supplier