Open Floor Plan Kitchen Dining Room

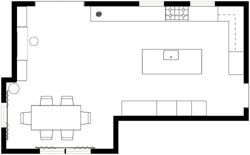
There are a number of features in this open floor plan kitchen dining room. There are three kitchen counters, base and overhead cabinets, a range with a wall-mounted chimney, a sink and some overhead shelves in case you want to display your nice china. There's also an island in the center which gives you more counter space and storage. This island can also serve as a breakfast nook if you place a few chairs around it. There's a dining area with a circular table and six comfortable chairs with handles. The floor of the kitchen is a warm reddish-brown color while the furniture and the counters are a contrasting light gray. Three windows lining one of the walls provide plenty of natural light. Overall, there's something very homey and inviting in this floor plan.

464 sq ft
43 m2
1 Level

This plan can be customized

Edit This Project

Want to edit this floor plan or create your own?

Download App

Similar Floor Plans


More From This Supplier