Space Efficient Studio Apartment With Full Bath

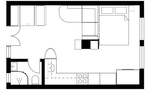
It's hard to believe that you can take a space as small as 375 sq ft and fit everything you need into it. This space efficient studio apartment with full bath has a built-in closet on the right as soon as you enter. If you go a little further, you'll come to the bathroom entrance; the bathroom has striking blue floor tiles, a bathtub, a shower, a sink and a toilet. Further up from the bathroom is a divan which can be used for sitting as well as sleeping. Next to the divan is a love seat with a coffee table and a TV in front of it. There's also a small dining table with two chairs on one side and a bench on the other side. Across from the dining area is an L-shaped kitchen with a sink, a cooking range and a refrigerator.

375 sq ft
35 m2
1 Level
1 Bath

This plan can be customized

Edit This Project

Want to edit this floor plan or create your own?

Download App

Similar Floor Plans


More From This Supplier