Relocation Services
With RoomSketcher, planning and visualizing downsizing and relocation projects is easy. Create floor plans and stunning 3D visuals at an affordable price.

“Of all the things I do as a Senior Move Manager, using RoomSketcher is one of my favorite aspects of my job! It is easy to use and has so many helpful features. What I can produce through RoomSketcher is impressive to my clients. They can see what their new living space will look and feel like. After seeing the RoomSketcher floor plan, many of my clients have been so much more relaxed about their move, knowing that everything will fit and look good too! Plus, it's very reasonably priced! ”
Linda Garcia
Senior Move Manager, Crown Senior Transition Services

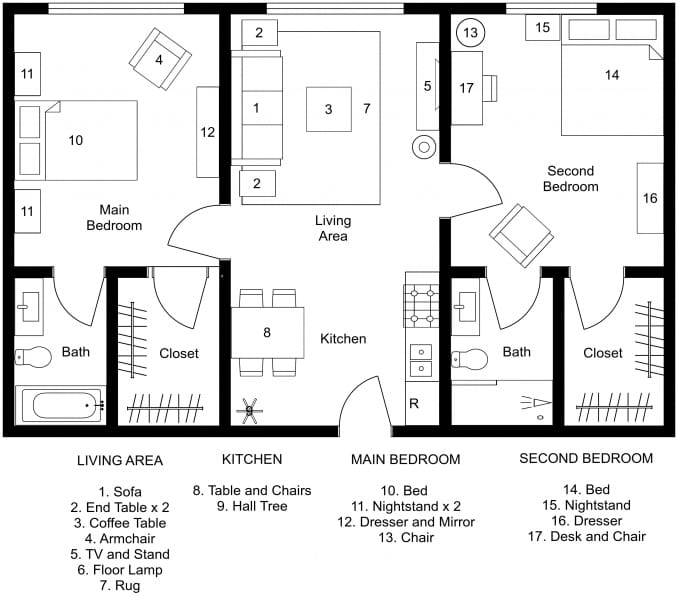
Impressive Floor Plans with Labels and Annotations
With relocation projects, you need to create a good plan for what your client can bring to their new home and what they need to get rid of. With RoomSketcher, it's easy to create a professional floor plan, complete with labels and annotations, so you can clearly illustrate which items they can bring with them. Annotate with text and hand the plan over to the movers, so the whole team knows what will go where.

Save Time on Space Planning
Re-create the floor plan of the new property in the RoomSketcher App and you have an interactive plan right in your hands. No technical knowledge is required; our team is here to help you get up and running. Easily add furniture items and resize them to the exact measurements. Create several layout options and have your clients choose which one they like best.
Work on your PC, Mac or tablet - all your projects are stored in the cloud and can be accessed from any device. Save time as you can work directly with your client in their home and finalize the floor plan together.

Help Your Clients Envision Their New Space
Create stunning 3D visuals to really showcase your client's new home. With more than 10.000 pieces of furniture and fixtures available in the software, paired with thousands of materials and color options, you can easily visualize any layout.
Impressive 3D renders, complete with details and accessories, helps both your clients and their families feel confident and excited about the forthcoming move.
Favorite Features
RoomSketcher is packed with professional features developed specifically for planning relocations. Here are some of our customers’ favorites:





