SketchUp vs. RoomSketcher
Choosing between SketchUp and RoomSketcher for your floor plan needs? This article will help you decide. From SketchUp's versatility to RoomSketcher's specialized object-based system, find the perfect fit for your projects.

SketchUp and RoomSketcher are two notable floor plan software solutions that cater to both professional and personal users. After extensively using and evaluating both tools, we found that although they share some similarities, there are significant differences that distinguish them from each other. This article aims to assist you in determining the tool that aligns best with your requirements by providing a comprehensive comparison of their distinctive features and advantages.


Why People Prefer RoomSketcher
- Intuitive and Easy-to-Use
Customers appreciate RoomSketcher for its friendly and intuitive user interface (UI). RoomSketcher is specifically designed for floor planning and home design, which makes it outstanding in terms of speed, functionality, and ease of use. The learning curve is short, as the most-used features are thoughtfully arranged and easily accessible.
- Flexible Platform - Draw Yourself or Order Floor Plans
RoomSketcher offers unmatched flexibility when it comes to creating floor plans. You can draw floor plans on your computer or tablet, start with a pre-designed template, import blueprints to trace over, or order floor plans from the redraw service with next-business-day delivery.
- Unparalleled Customization Options
With RoomSketcher, your 2D and 3D Floor Plans can reflect your unique style and branding. You can select your favorite colors and materials, plus add furnishing, annotations, and symbols to personalize your designs. Save your preferred 2D and 3D styles, allowing for consistency across all of your projects.
- Friendliest Customer Service There Is
RoomSketcher’s easy-to-reach customer service team has an attitude of “we are here to help.” With RoomSketcher, you have real human beings available to support you. Paired with a comprehensive online Help Center and a curated selection of get-started tutorial videos, you will be up and running in no time.
SketchUp vs. RoomSketcher - A Deep Dive Comparison
It’s important to select a solution that works best for your specific needs. Having tested both SketchUp and RoomSketcher, we have gained valuable insights. In this article, we will dive into the details and offer a comprehensive comparison of the similarities and differences between each floor plan tool.
DIY Floor Plan Software

SketchUp is a general drawing product that takes longer to learn and use than RoomSketcher, which is specifically designed for floor planning and home design. RoomSketcher offers a streamlined process for creating floor plans, allowing users to quickly draw walls and rooms simple by clicking, completing the task in seconds. In contrast, SketchUp requires users to draw separate lines and piece them together, resulting in a much slower process.
Once rooms are drawn in RoomSketcher, it’s just a couple of clicks to add textures or material - such as paint, wallpaper, tile, and flooring - from the large material library. Plus, RoomSketcher offers an extensive object library with drag-and-drop functionality, making it simple to furnish the floor plan. Users can easily drag and place tables, sofas, appliances, artwork, or one of the thousands of other pre-made objects right onto their floor plans. Customizing objects in RoomSketcher is also a breeze - users can adjust the size by dragging, input exact measurements, and click to change texture or materials.
In contrast, SketchUp typically requires 5-10 times more clicks to add each item of furniture, as users need to draw each individual component, such as tables, chairs, or other objects. Overall, our evaluation found that RoomSketcher is better suited for floor plans and design tasks, offering a more efficient and user-friendly experience.
Platform Availability

Both SketchUp and RoomSketcher are available on desktop computers and tablets. However, while SketchUp's tablet version offers limited functionality, RoomSketcher's tablet version includes all the same features and capabilities as its desktop counterpart. This makes RoomSketcher a more versatile and comprehensive option for users who need full functionality on all devices.
Whether working in the office or out in the field, RoomSketcher ensures a seamless and consistent experience, allowing you to enjoy all the powerful tools and features regardless of your preferred platform. This compatibility and accessibility make RoomSketcher the preferred choice for those seeking a robust floor plan software solution.
Order Floor Plans

If you need professional floor plans on a tight deadline, a redraw service can be an invaluable resource. RoomSketcher’s redraw service is available to customers of all sizes, allowing anyone to submit a blueprint or sketch and receive professional-quality 2D and 3D Floor Plans, along with an editable project, by the next business day. You can even make last-minute adjustments to the received project and then re-generate the floor plans free of charge. RoomSketcher’s redraw service is incredibly affordable, making it a top choice for those needing high-quality floor plans in a hurry.
Floor Plans

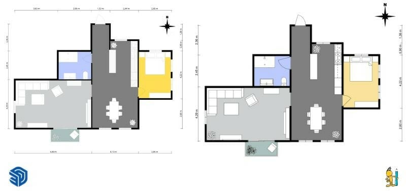
With Sketchup and RoomSketcher, you can end up with similar 2D floor plans. However, it’s important to consider how much time and effort you’ll have to invest in creating the floor plans.
With RoomSketcher, the process is fast and easy. You draw a floor plan in a 2D mode and then generate professional 2D and 3D Floor Plans from that single design - this saves a lot of time because you don't have to draw two separate floor plans. Plus, any change automatically appears on both the 2D and 3D versions - no need to remember and recreate any final edits across two floor plans.
SketchUp has separate object libraries for 2D and 3D floor plans, and you have to create the floor plans individually, adding complexity and time. Plus, if you want to change the floor plan later, for instance, to move a wall, change a door, or add an item of furniture, you have to do it twice in SketchUp - once for the 2D Floor Plan and once for the 3D Floor Plan - instead of just once in RoomSketcher. Overall, RoomSketcher is the better option for those looking for a streamlined and efficient floor plan software solution.
Customization of Floor Plans

An area where RoomSketcher truly stands out is its extensive floor plan customization options. With RoomSketcher, you can easily customize your 2D and 3D Floor Plans to match your unique style and preferences.
You can also create a personalized letterhead with your logo and custom text for professional printing results. Best of all, save the 2D and 3D Floor Plan settings for a consistent look every time you generate floor plans. These powerful customization options are second-to-none, and we have yet to see them offered by another provider.
SketchUp’s basic tool has some limited customization options. You can change the floor colors for individual rooms, add text and your company logo, and change the floor plan's perspective or angle at which you view the 3D floor plan. However, SketchUp’s floor plans are not as aesthetically pleasing - most furniture remains white, and the 3D look is more simplistic. We believe the Sketchup results are not up to par for marketing and commercial purposes. Note that you can purchase add-ons to improve the look of the final Sketchup floor plans, but this is a costly and time-consuming option.
3D Visuals

When it comes to 3D visuals, RoomSketcher stands out as the clear winner compared to SketchUp. RoomSketcher offers exceptional realism and attention to detail in its 3D renderings, bringing designs to life with stunning accuracy. Its advanced rendering capabilities create visually stunning 3D images, allowing users to envision their spaces with lifelike textures and materials.
Conversely, while SketchUp is a powerful tool for creating 3D models, its visual capabilities often fall short in terms of realism. The graphics and rendering in SketchUp lack the depth and intricacy found in RoomSketcher's visuals. While it is possible to enhance the SketchUp visuals using a third-party rendering plugin, this approach tends to be more complicated and expensive compared to RoomSketcher’s easy, focused, all-in-one-place solution.
Overall, RoomSketcher emerges as the superior choice for users seeking highly realistic and detailed 3D visuals, providing an effortless and comprehensive solution without the need for additional plugins or complexity.
Furniture Customization

In SketchUp, replacing materials is possible, but the process is manual, time-consuming, and unavailable with the basic tool. While SketchUp does have a vast collection of imported third-party furniture objects available, modifying and customizing them is difficult.
With RoomSketcher, changing materials and textures on floors, walls, appliances, accessories, and furniture is as simple as browsing and clicking. RoomSketcher offers a vast library of materials to choose from, ensuring a wide range of options. Furthermore, users can add their own custom color codes, enabling them to personalize their project to a greater extent.
Additionally, RoomSketcher goes a step further by offering a convenient Favorites list option. This feature is particularly beneficial for users who frequently use specific materials. With the Favorites list, users can easily access their preferred materials, saving time and effort.
Overall, RoomSketcher surpasses SketchUp in terms of convenience and ease of material replacement, providing a user-friendly experience with a rich library of materials and the ability to personalize designs more effectively.
Customer Support

Both SketchUp and RoomSketcher provide prompt and dependable customer support to answer user inquiries. They also offer similar support setups, including Help Centers with training articles, videos, and customer service representatives ready to assist.
We think RoomSketcher takes the lead in terms of the quality and focus of its support materials. RoomSketcher’s training videos tend to be shorter and more concise, and their help articles are more focused. In contrast, we found that SketchUp’s videos tended to be longer and required more time to watch, leading to a potentially longer search for specific information. In addition, it appears that SketchUp’s help articles are primarily focused on getting users started, thus lacking in-depth resources for more advanced questions.
Considering the availability of shorter videos and more focused articles, RoomSketcher stands out as the superior option in terms of support documentation, making it easier for users to find the answers they need efficiently.
Pricing
You can see the complete overview of SketchUp’s plans and pricing here.
You can see the complete overview of RoomSketcher’s plans and pricing here.
SketchUp vs. RoomSketcher - Which Floor Plan Tool is Right for You?
When making a decision between products, it often boils down to which is more user-friendly, offers the key features you need, and has better pricing.
SketchUp, while offering versatile design capabilities, often presents a steep learning curve. Additionally, SketchUp's basic tool may not provide all the required functionality, necessitating the purchase of expensive add-ons to access desired features.
In contrast, RoomSketcher excels in user-friendly design, offering all the necessary features conveniently in one place. It provides a highly affordable solution, making it accessible to a wide range of users. With RoomSketcher, users can enjoy a seamless and accessible experience without straining their budget.
Taking these factors into consideration, RoomSketcher emerges as a preferred choice for individuals or businesses seeking a cost-effective, feature-rich, and user-friendly floor plan software solution.
What are you waiting for?
Create a free account and see for yourself how easy RoomSketcher is to use. Then upgrade to a paid subscription to unlock the full power of RoomSketcher.
Don't forget to share this post!
Recommended Reads

Planner 5D vs. RoomSketcher
Planner 5D vs. RoomSketcher - which floor plan software is right for you? Check out our deep-dive comparison now.

Cedreo vs. RoomSketcher
Cedreo vs. RoomSketcher - which floor plan software is right for you? Check out our deep-dive comparison now.

PlanUp vs. RoomSketcher
Choosing between PlanUp and RoomSketcher for your floor plan needs? This article will help you decide.