Organic Restaurant Floor Plan Layout With Round Table

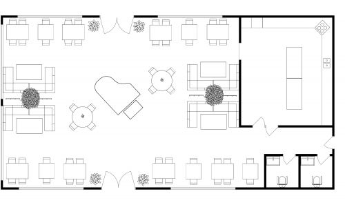
Natural details, earthy colors, and minimalist style make this organic restaurant floor plan layout look as inviting as it feels. Enter its white glass paneled sliding glass doors to find an open floor plan featuring gray tiled flooring and sage green walls. The room includes plenty of space for a variety of seating arrangements, including this oversized round table and small booth areas with wooden tables and tan chairs. A simple bar area can be found in the corner of the room with the kitchen area located right behind it. The one-room bathroom includes the same gray tiled floors and white appliances. The simplicity of the room adds to its organic charm and makes decorating as simple as bringing in a few leafy houseplants. Dining and hanging out in this bright and airy restaurant will be a pleasure for anyone who visits it.

1258 sq ft
117 m2
1 Level

This plan can be customized

Edit This Project

Want to edit this floor plan or create your own?

Download App

Similar Floor Plans


More From This Supplier