Bright Coffee Shop Style With Space Efficient Seating

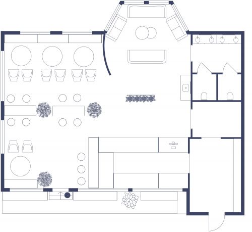
This space is everything you hope to see when stepping into your local coffee shop to grab your favorite beverage. Modern, airy, and inviting, this bright coffee shop style with space efficient seating lets its thoughtful furnishings and a few bold details speak for themselves, resulting in a space that is as functional as it is attractive. Long wooden tables are paired with a combination of simple circular stools and black leather chairs, giving guests a variety of spots to respond to work emails or catch up with friends. The barista area consists of two sleek gray marble countertops. A cobalt blue wall brings in a much-needed pop of color while the two windows and wood-framed door maximize the shop's natural light. The bathroom is simple yet chic with black and white appliances and stylish pebble flooring. Customers won't get enough of this eye-catching yet understated coffee shop.

989 sq ft
92 m2
1 Level

This plan can be customized

Edit This Project

Want to edit this floor plan or create your own?

Download App

Similar Floor Plans


More From This Supplier