Lunden 158

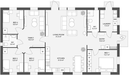
The grouped bedroom layout is one of the popular features in this Lunden 158 floor plan. A front porch leads into the entry foyer, complete with a closet, convenient ¾ bathroom, and a sizable laundry room. The expansive great room, with its L-shaped kitchen, allows for virtually unlimited furniture arrangements. Several large windows and a glass door, designed to maximize views, overlook the spacious deck and backyard. On the left side of the plan, the generous primary bedroom features a large walk-in closet and french doors to the back deck. Nearby, a shared bathroom treats you to a luxurious oversized soaking tub. Furnish the two adjacent secondary bedrooms with large built-in closets according to your needs: they could be perfect for kids, guests, a workout room, or an office.

Made by
Bra Hus
1701 sq ft
158 m2
1 Level
3 Bedrooms
2 Baths

This plan can be customized

Edit This Project

Want to edit this floor plan or create your own?

Download App

Similar Floor Plans


More From This Supplier