2 Car Garage Apartment Plan

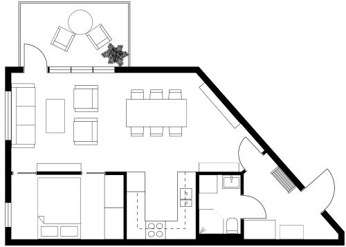
Live comfortably and in style in this 2 car garage apartment plan. On the ground floor, find a spacious garage with plenty of room for two vehicles, and follow an indoor staircase up to the thoughtfully designed one bedroom apartment. The staircase leads into a spacious living room with a comfortable couch and TV setup. Open-concept design leads you seamlessly into the kitchen and dining area, where you'll find a central kitchen island plus an L-shaped countertop layout with a refrigerator, range, and double sink. Off to the side, find enough space for a formal dining table, and you can even enjoy your meals in the fresh air out on the private balcony. A spacious bedroom awaits in the back of the apartment, and a spa-inspired bathroom offers a glass-enclosure shower plus a laundry room.

982 sq ft
91 m2
2 Levels
1 Bedroom
1 Bath

This plan can be customized

Edit This Project

Want to edit this floor plan or create your own?

Download App

Similar Floor Plans


More From This Supplier