Rectangular Bathroom Layout With Washer and Dryer

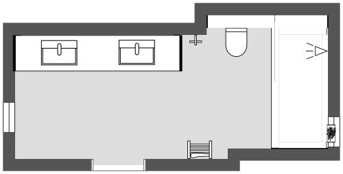
A washer and dryer add functionality and convenience to this rectangular full bathroom layout. The swing door opens with a view of the floating vanity sink, which features generous countertops and under-sink storage. With a wall-mounted vanity and floating toilet, this room feels spacious and easy to clean. A soaking tub with a shower fixture allows flexibility in bathing choices and next to the tub, a handy towel rack keeps dry towels nearby and easy to reach. Choose a stacked or combination washer/dryer for the dedicated corner. The built-in shelves above hold all your laundry and cleaning supplies. The neutral decor features a statement wall of honey-colored ledger stone, for texture and visual interest while large-format stacked tile covers the 3 other walls. A light blue shower curtain and sea glass-colored towels add a touch of color to this soothing natural design.

47 sq ft
4 m2
1 Level

This plan can be customized

Edit This Project

Want to edit this floor plan or create your own?

Download App

Similar Floor Plans


More From This Supplier