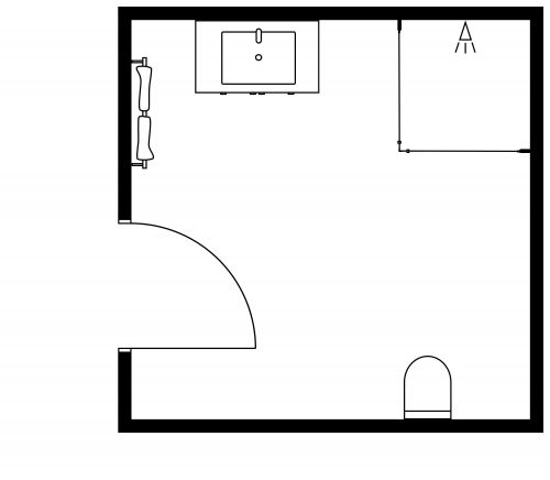
Small Square Bathroom Craftsman Style

Wood and greenery bring a touch of craftsman style to this small square full bathroom floor plan. Orient the swing of the wood entrance door inward or outward depending on what works best with the rest of the home layout. Inside the bathroom, wood-trimmed casement windows add to the decor and add airflow to the room. A floating toilet and sink provide a feeling of lightness and make floor cleaning a breeze. The combined bathtub/shower allows all users their preferred method of bathing; notice the handy cabinet at one end of the tub to keep supplies at hand. A convenient medicine cabinet mirror above the sink provides storage and a plant shelf. A warming towel rack offers a luxurious finishing touch to this comfortable small bathroom layout.

38 sq ft
4 m2
1 Level

This plan can be customized

Edit This Project

Want to edit this floor plan or create your own?

Download App

Similar Floor Plans


More From This Supplier