Zen Master Bathroom Design

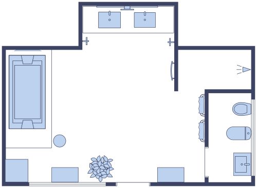
Enjoy an oasis of beauty and calm in this spacious Zen-inspired primary bathroom design. Wide french doors lead into a generous rectangular space. This bathroom floor plan is perfect for two with its dual vanity sinks, double shower fixtures, and private toilet room with an additional single sink vanity. A stand-alone soaking tub, a key feature of Zen décor, sits on a linear ledger stone tile floor—this accent, plus the beige textured linear mosaic wall tiles, bring a natural look and feel to the room. Wood elements are another hallmark of Zen décor, and this room features wood doors, flooring, tub and vanity surrounds, and windowpane screen dividers. A marble vanity countertop with a stone accent piece continues the room's natural feel. Large windows bring in natural light and views, and several green plants complete this upscale Zen-inspired room.

Made by
Andrea Platzer
319 sq ft
30 m2
1 Level

This plan can be customized

Edit This Project

Want to edit this floor plan or create your own?

Download App

Similar Floor Plans


More From This Supplier