Barndominium House Plan Model 4257

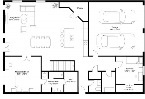
Barndominium House Plan Model 4257 from Barndos stands out for its massive 60 ft x 60 ft (about 18 m x 18 m) garage space. The floor plan’s grand total footprint with the garage included is 5064 sq ft (about 470 m2). The design consists of a front porch and entry into an open living and dining space. A sizeable u-shaped kitchen has space for all your favorite appliances. A separate mudroom and laundry are accessible from the garage or the living area. The primary bedroom includes a large walk-in closet and ensuite bathroom complete with 2 sinks and a separate shower and bathtub. A second bedroom is a generous size and also includes a walk-in closet. The enormous garage has 4 vehicle entry doors, a workshop or gym space, and direct access to a ¾ bathroom complete with sink, toilet, and shower.

Made by
Barndos
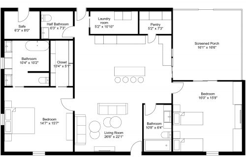
1631 sq ft
152 m2
1 Level
2 Bedrooms
3 Baths

This plan can be customized

Edit This Project

Want to edit this floor plan or create your own?

Download App

Similar Floor Plans


More From This Supplier